A propos de ce bien
Située aux portes d’Elouges, cette maison 3 façades avec garage, entrepôt attenant, terrasse et jardin constitue une opportunité rare pour les amateurs de volumes, de potentiel et de projets sur mesure.
Offrant de beaux espaces intérieurs et extérieurs, cette habitation à rénover se prête parfaitement à un projet familial, mixte ou professionnel. L’ajout d’un entrepôt directement accessible depuis le garage élargit encore les possibilités.
Sous-sol: caves, pour le stockage ou future cave à vin
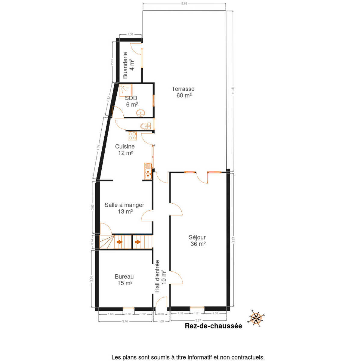
Rez-de-chaussée : hall d’entrée, bureau ou chambre de plain-pied, double séjour traversant et lumineux, salle à manger conviviale, cuisine indépendante, salle de douche, WC séparé et buanderie pratique.
Premier étage: hall de nuit et 4 chambres bien dimensionnées.
Second étage : vaste grenier aménageable.
Extérieurs :
- Terrasse orientée vers le jardin, idéale pour les moments de détente.
- Jardin à l’arrière, verdoyant et bien proportionné.
- Garage + entrepôt attenant, parfait pour un artisan, une activité professionnelle ou un grand espace de rangement.
Un projet de rénovation plein de promesses !
Infos et visites avec François au 0465.21.58.63 !
Offre àpd 225.000€. Prix souhaité: 250.000€ (sauf meilleure offre).
Honoraires d'agence à charge de l'acheteur.
Le détail de nos honoraires est consultable sur notre site internet.
PEB G N°20250724010560 - ESPEC 533 kWh/m².an - ETOTAL 115 997 kWh/an.
Pub à caractère non contractuel et ne constituant pas une offre. Le pouvoir décisionnel appartient au vendeur.
Détails / Caractéristiques
Caractéristiques principales
- État : 6
- Façade : 3
- Jardin : Oui
- Terrasse : Oui
Pièces
- Nbre de toilette(s) : 1
- Nbre de Sdd : 1
- Chambre 1 : 15.02 m²
- Chambre 2 : 19.79 m²
- Chambre 3 : 17.76 m²
- Salle de séjour : 35.86 m²
- Salle à manger : 13.04 m²
- Cuisine : 12.14
- Bureau : 14.66 m²
Energie


- E spéc. : 533 kWh/m².an
- Niveau PEB : G
- PEB Total : 115997 Kwh/an
- PEB No. : N° 20250724010560
valable jusqu'à 2035
Equipement
- Chauffage : mazout (chauf. centr.)
- Chassis : aluminium
Extérieur
- Surface habitable : 493 m²
Raccordements
- Egouts : Oui





























