A propos de ce bien
Située à proximité immédiate du centre de Dour et d’une vaste zone boisée, cette maison en coin présente un excellent potentiel pour un projet locatif ou de colocation.
Les gros postes déjà réalisés :
-Réception électrique conforme
-Nouvelle toiture avec isolation en laine de roche
-Plafonnage terminé
-Châssis installés
-Belle cave saine
Les finitions encore à prévoir :
-Installation des sanitaires (2 salles de douche + 1 salle de bain)
-Mise en place des évacuations et radiateurs
-Pose des revêtements (carrelage, sols)
-Cuisine et aménagement intérieur
-Finitions extérieures
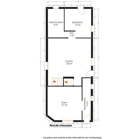
La maison compte actuellement 4 chambres, avec possibilité d’en créer une 5ᵉ en réaménageant l’espace.
Une opportunité idéale pour :
-Logements pour sociétés d’ouvriers
-Projet Airbnb ou colocation
-Location classique avec bon rendement
Infos et visites avec Anthony au 0495.21.58.63.
Prix souhaité: 150.000€ (sauf meilleure offre). Honoraires d'agence à charge de l'acquéreur.
Le détail de nos honoraires est consultable sur notre site internet.
PEB E - N°20250826028729 - 398 kwh/m²/an - 83755 kWh/an.
Pub à caractère non contractuel et ne constituant pas une offre. Le pouvoir décisionnel appartient au vendeur.
Détails / Caractéristiques
Caractéristiques principales
- État : 6
- Façade : 4
- Jardin : Oui
Pièces
- Nbre de Sdd : 1
- Chambre 1 : 20.56 m²
- Chambre 2 : 15.01 m²
- Chambre 3 : 15.7 m²
- Cuisine : 34.93
Energie


- E spéc. : 398 kWh/m².an
- Niveau PEB : E
- PEB Total : 83755 Kwh/an
- PEB No. : N° 20250826028729
valable jusqu'à 2035
Equipement
- Double vitrage : Oui
- Chassis : pvc
Extérieur
- Surface bâtie : 118 m²
- Surface habitable : 279 m²
- Largeur de façade : 6 m
Raccordements
- Egouts : Oui

























