A propos de ce bien
Idéalement située au cœur de Dour, cette charmante maison offre un cadre de vie convivial, parfait pour une première acquisition ou pour accueillir une petite famille.
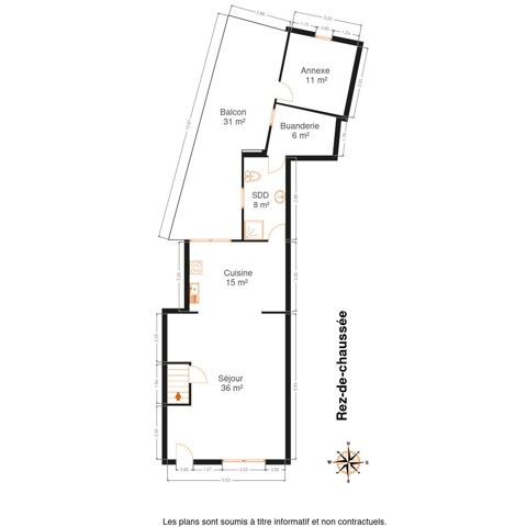
Dès l’entrée, vous êtes accueillis dans un espace de vie ouvert comprenant séjour, salon et salle à manger, baigné de lumière et propice aux moments de partage. La cuisine se prolonge vers une salle de bain et une buanderie, tout en offrant un accès direct à l’extérieur.
À l’étage, le hall de nuit dessert deux belles chambres ainsi qu’une pièce polyvalente pouvant être aménagée en bureau, dressing ou chambre d’enfant selon vos besoins.
L’extérieur séduira par sa terrasse agréable et son jardin de plus de cinq ares, idéal pour les repas en plein air, les jeux ou la détente.
Un passage latéral complète l’ensemble, apportant un confort supplémentaire pour l’accès au jardin.
Alliant emplacement central et potentiel d’aménagement, cette maison est une opportunité à saisir à Dour !
Infos et visites avec Emeline au 0471.21.64.99.
Offre àpd 150.000€. Honoraires d'agence à charge de l'acquéreur.
Le détail de nos honoraires est consultable sur notre site internet.
PEB D - N°20250823007972 - 52441 kWh/an - 323 kwh/m²/an.
Pub à caractère non contractuel et ne constituant pas une offre. Le pouvoir décisionnel appartient au vendeur.
Détails / Caractéristiques
Caractéristiques principales
- État : 4
- Façade : 2
- Jardin : Oui
Pièces
- Nbre de toilette(s) : 2
- Nbre de Sdd : 1
- Chambre 1 : 10.71 m²
- Chambre 2 : 11.01 m²
- Salle de séjour : 35.46 m²
- Cuisine : 14.63
Energie


- E spéc. : 323 kWh/m².an
- Niveau PEB : D
- PEB Total : 52441 Kwh/an
- PEB No. : N° 20250823007972
valable jusqu'à 2035
Equipement
- Double vitrage : Oui
- Chauffage : gaz
- Chassis : bois
Extérieur
- Surface bâtie : 109 m²
- Surface habitable : 170 m²
- Largeur de façade : 6 m
Raccordements
- Egouts : Oui































