A propos de ce bien
Situé à deux pas de Mons, dans un quartier calme et recherché de Ghlin, cet immeuble à rénover offre un potentiel remarquable.
Que vous soyez à la recherche de votre future maison familiale ou que vous envisagiez un projet de colocation ou de kots étudiants (sous réserve des autorisations nécessaires), cette propriété ne demande qu’à être repensée selon vos envies.
- Sous-sol : cave pratique pour le rangement.
- Rez-de-chaussée : vaste hall d’entrée, séjour lumineux traversant, salle à manger, cuisine, buanderie et WC séparé.
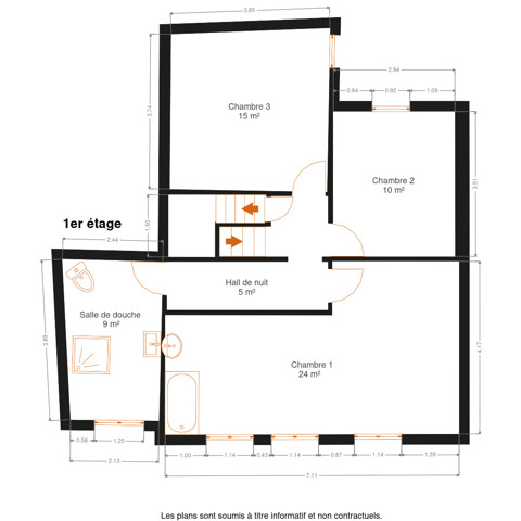
- 1er étage : hall de nuit, trois belles chambres et une salle de douche.
- Grenier : vaste espace déjà aménagé avec un WC existant, pouvant être divisé en plusieurs chambres ou transformé en espace de vie polyvalent.
Des travaux sont à prévoir, mais la structure et les volumes généreux offrent une base idéale pour créer un logement confortable, un habitat partagé ou un investissement locatif rentable.
Une opportunité rare sur le marché local. Ne manquez pas ce bien à haut potentiel, contactez Anthony au 0495.21.58.63 sans tarder pour planifier votre visite.
Offre àpd 155.000€. Prix souhaité: 160.000€ (sauf meilleure offre).
Honoraires d'agence à charge de l'acquéreur.
PEB G - N°20160722005581 - E TOTAL 90124 kWh/an- E SPEC 577 kwh/m².an.
Le détail de nos honoraires est consultable sur notre site internet.
Publicité à caractère non contractuel et ne constituant pas une offre. Le pouvoir décisionnel appartient au vendeur.
Détails / Caractéristiques
Caractéristiques principales
- État : 6
- Façade : 2
- Jardin : Oui
- Terrasse : Oui
Pièces
- Nbre de toilette(s) : 3
- Nbre de Sdd : 2
- Chambre 1 : 24.48 m²
- Chambre 2 : 10.32 m²
- Chambre 3 : 14.7 m²
- Salle de séjour : 42.88 m²
- Salle à manger : 14.25 m²
- Cuisine : 11.03
Energie


- E spéc. : 577 kWh/m².an
- Niveau PEB : G
- PEB Total : 90124 Kwh/an
- PEB No. : N° 20160722005581
valable jusqu'à 2026
Equipement
- Double vitrage : Oui
- Chauffage : mazout (chauf. centr.)
- Chassis : pvc
Extérieur
- Surface bâtie : 150 m²
- Surface habitable : 248 m²
- Largeur de façade : 9 m
- Orientation
de la terrasse : sud
Raccordements
- Egouts : Oui




























