A propos de ce bien
À Boussu-Bois, se dresse une maison de rangée pleine de promesses. Derrière sa façade discrète se cache un vaste intérieur, un écrin d’espace à réinventer selon vos rêves.
Le sous-sol vous offre des caves.
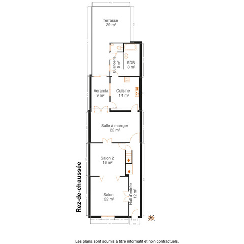
Au rez-de-chaussée, un hall d’entrée s’ouvre sur un double salon et une salle à manger généreuse, où l’on imagine déjà les rires d’une famille réunie. La cuisine, la salle de bains, la buanderie et la véranda complètent ce niveau, formant un quotidien pratique et fonctionnelle.
L’escalier mène au premier étage : un hall de nuit dessert quatre chambres, véritables refuges pour grands et petits, ainsi qu’un espace WC indépendant.
Plus haut encore, un grenier vaste vous attend, page blanche à aménager selon vos besoins et vos envies.
À l’extérieur, la terrasse invite aux beaux jours, tandis qu’un grand jardin se déploie, terrain de jeux et de repos.
Et pour parfaire le tableau : deux garages accessibles depuis le jardin, un confort rare et précieux.
Ce bien à rénover constitue une belle opportunité pour qui souhaite créer un foyer à son image, avec de généreux volumes et des espaces extérieurs vastes.
Infos et visites : 065.65.34.73 !
Offre àpd 140.000€. Honoraires d’agence à charge de l’acheteur.
Le détail de nos honoraires est consultable sur notre site internet.
PEB E - N°20250521033613 - ESPEC 346 - ETOTAL 79180.
Pub à caractère non contractuel et ne constituant pas une offre. Le pouvoir décisionnel appartient au vendeur.
Détails / Caractéristiques
Caractéristiques principales
- État : 6
- Façade : 2
- Jardin : Oui
- Terrasse : Oui
Pièces
- Nbre de toilette(s) : 2
- Nbre de Sdd : 1
- Chambre 1 : 21.6 m²
- Chambre 2 : 16.47 m²
- Chambre 3 : 9.66 m²
- Salle à manger : 21.96 m²
- Cuisine : 13.99
Energie


- E spéc. : 346 kWh/m².an
- Niveau PEB : E
- PEB Total : 79180 Kwh/an
- PEB No. : N° 20250521033613
valable jusqu'à 2035
Equipement
- Chauffage : gaz (chau. centr.)
- Chassis : bois
Extérieur
- Surface bâtie : 170 m²
- Surface habitable : 280 m²
- Largeur de façade : 7 m
Raccordements
- Egouts : Oui
- Câbles téléphoniques : Oui



































