A propos de ce bien
Maison à rénover au Cœur d’un Village Paisible. Ici, le silence a élu domicile, et les oiseaux sont les seuls voisins un peu bavards. Dans ce charmant village où le temps semble s’être arrêté, une maison attend son prochain chapitre, son poète-bricoleur, son rêveur à marteau. Un cocon en devenir pour qui sait voir au-delà des briques.
Description du voyage intérieur :
Sous-sol : une cave
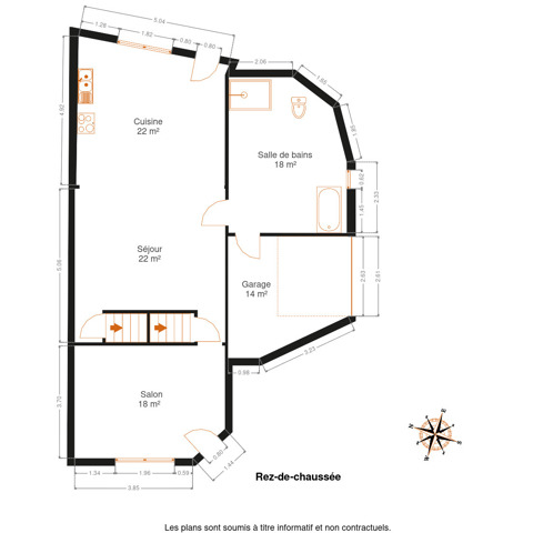
Rez-de-chaussée : un salon à faire renaître, une salle à manger pour festins futurs, une cuisine où mijoter l’imagination, une salle de bains à réenchanter, et un garage pour abriter carrosse ou outils de magicien.
Étage : deux chambres, un grenier qui n’attend que vos idées pour devenir une salle de jeux ou refuge étoilé.
Pas d’extérieur ? Peut-être… Mais à quoi bon un jardin quand la campagne toute entière s’offre à vos promenades ?
✨ Ce bien est une toile blanche. Il attend celui ou celle qui osera en faire une œuvre. Vous?
Prix souhaité: 95.000€. Honoraires d'agence à charge de l'acheteur.
Infos et visites avec François au 0465 84 69 30 !
PEB N° 20250515033247 LABEL E - E-SPEC : 400 kwh/m²/an - E TOTAL : 68640 kWh/an.
Le détail de nos honoraires est consultable sur notre site internet.
Publicité à caractère non contractuel et ne constituant pas une offre. Le pouvoir décisionnel appartient au vendeur.
Détails / Caractéristiques
Caractéristiques principales
- État : 6
- Façade : 3
Pièces
- Nbre de toilette(s) : 1
- Nbre de Sdd : 1
- Chambre 1 : 18.56 m²
- Chambre 2 : 20.11 m²
- Salle de séjour : 21.66 m²
- Cuisine : 1
Energie


- E spéc. : 400 kWh/m².an
- Niveau PEB : E
- PEB Total : 68640 Kwh/an
- PEB No. : N° 20250515033247
valable jusqu'à 2035
Equipement
- Double vitrage : Oui
- Chauffage : pellets
- Chassis : bois
Extérieur
- Surface bâtie : 113 m²
- Surface habitable : 128 m²
- Largeur de façade : 8 m
Raccordements
- Câbles téléphoniques : Oui






















