A propos de ce bien
Situé en plein centre de Boussu, à proximité immédiate de toutes les commodités, cet immeuble mixte est une opportunité idéale pour un commerçant ou un investisseur.
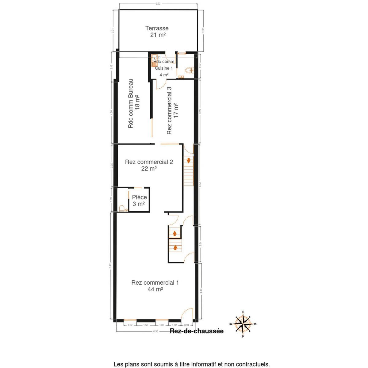
Le rez-de-chaussée abrite un superbe salon de coiffure de près de 110 m², aménagé avec plusieurs espaces dédiés, un bureau, deux coins cuisine ainsi qu’un accès à une terrasse et un jardin, offrant un cadre agréable pour la clientèle et l’équipe.
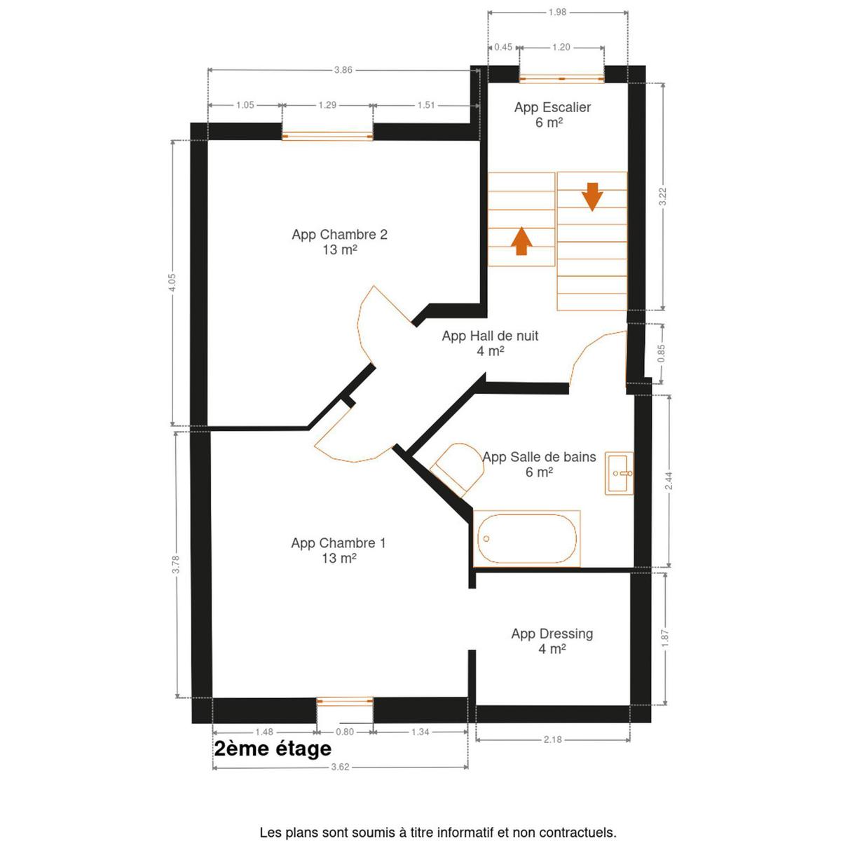
À l’étage, dans la continuité du bâtiment, un élégant appartement 2 chambres, moderne et lumineux, offre un cadre de vie confortable et indépendant.
Que vous soyez à la recherche d’un local commercial avec logement ou d’un bien à rendement, cette propriété est une opportunité à ne pas manquer !
PEB : F
Espec: 431 kwh/m²/an
Etotal : 52210 kWh/an
Code unique : 20220128003902
INFOS ET VISITES: Emeline au 0471/21.64.99
Offre à partir de 260.000€. Prix souhaité: 290.000€.
Le détail de nos honoraires est consultable sur notre site internet.
Publicité à caractère non contractuel et ne constituant pas une offre. Le pouvoir décisionnel appartient au vendeur.
Détails / Caractéristiques
Caractéristiques principales
- État : 4
- Façade : 2
- Jardin : Oui
- Terrasse : Oui
Pièces
- Nbre de toilette(s) : 3
- Nbre de Sdd : 1
- Chambre 1 : 13.04 m²
- Chambre 2 : 12.84 m²
- Salle de séjour : 28.94 m²
- Cuisine : 12.38
- Bureau : 18.05 m²
Energie


- E spéc. : 431 kWh/m².an
- Niveau PEB : F
- PEB Total : 52210 Kwh/an
- PEB No. : N° 20220128003902
valable jusqu'à 2032
Equipement
- Double vitrage : Oui
- Chauffage : accumulateurs électriques
- Chassis : bois
Extérieur
- Surface bâtie : 157 m²
- Surface habitable : 241 m²
- Largeur de façade : 7 m
Raccordements
- Egouts : Oui
- Câbles téléphoniques : Oui


























