A propos de ce bien
Vous êtes à la recherche d'un investissement immobilier ? Ne cherchez pas plus loin. Situé au cœur de Dour, un bel immeuble de rapport est maintenant disponible à la vente.
Cet immeuble idéalement positionné offre une accessibilité sans pareille à une myriade de commerces de proximité, rendant la vie de ses locataires aussi pratique que confortable. L’immeuble se compose de deux appartements déjà loués, offrant un revenu locatif garanti de 1429€ dès l'acquisition et un rendement brut de 6,24% !
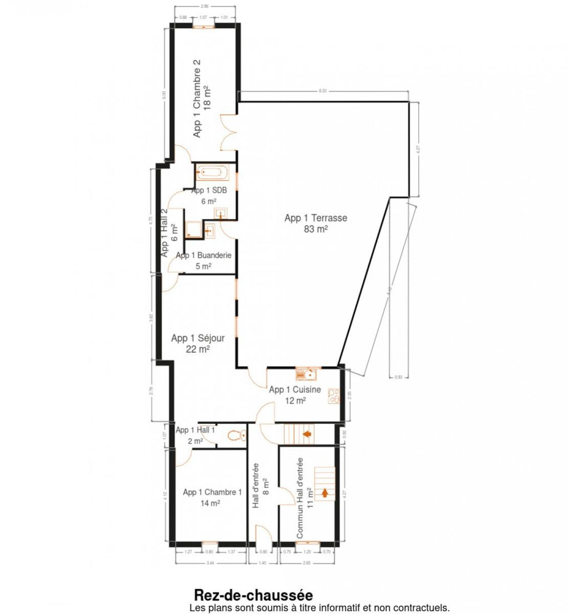
Chacun des appartements est conçu avec des intérieurs confortables. En plus de son emplacement stratégique et de son revenu locatif stable, cette propriété se distingue par ses espaces extérieurs. Le rez de chaussée dispose d'un grand jardin verdoyant qui offre un havre de paix et de tranquillité.
Complétant ces prestations, le rez de chaussée bénéficie d'une terrasse de 80m2.
N'attendez pas pour découvrir cet immeuble de rapport qui offre un équilibre parfait entre rentabilité, qualité de vie pour les locataires et tranquillité d'esprit pour l'investisseur.
Une opportunité à ne pas manquer, qu'il s'agisse de votre premier investissement ou de l'ajout d'un bien supplémentaire à
votre portefeuille immobilier.
Contactez Alban dès aujourd'hui au 0478.56.37.32 !
Prix souhaité 275.000 euros (sauf meilleure offre).
Publicité à caractère non contractuel et ne constituant pas une offre. Le pouvoir décisionnel appartient au vendeur.
Détails / Caractéristiques
Caractéristiques principales
- État : 4
- Façade : 2
- Jardin : Oui
- Terrasse : Oui
Pièces
- Nbre de toilette(s) : 3
- Nbre de Sdd : 2
Energie


- E spéc. : 627 kWh/m².an
- Niveau PEB : G
- PEB Total : 69936 Kwh/an
- PEB No. : N° 20140622002822
valable jusqu'à 2024
Equipement
- Double vitrage : Oui
- Chauffage : gaz (chau. centr.)
- Chassis : bois
Extérieur
- Surface bâtie : 144 m²
- Surface habitable : 196 m²
- Largeur de façade : 8 m
Raccordements
- Egouts : Oui
- Câbles téléphoniques : Oui






























